Contact
Rue Hector Denis 47B
1050 Ixelles
+32 (0)2 64 62 561
info@address-re.be
Situatie:
Elsene, mooie, rustige ligging in een achterhuis, dichtbij openbaar vervoer, winkels en de begraafplaats van Elsene.
Beschrijving :
Een licht duplex van 132m2 met een terras van 10m2 in een klein appartementencomplex.
Als u in hartje Elsene op een zeer rustige locatie wilt wonen, dan is dit pand wellicht iets voor u.
Het bijzondere aan dit atypische pand is dat het momenteel een kantoorruimte is, en dat er een vergunning is verkregen voor de transformatie tot privéwoning.
Een eenvoudige en flexibele renovatie, volgens uw behoeften.
Het gebouw dateert uit 2008 en het pand is in 2022 volledig gerenoveerd.
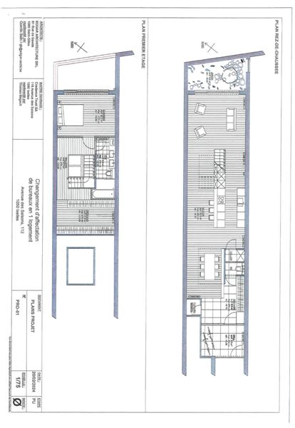
Indeling:
Een gedeelde binnenplaats tussen het voorste gebouw en het achterste gebouw.
Eerste niveau van +/- 85m2
Gepland is een eerste inkom voor de stalling van fietsen, en een tweede inkomhal met vestiaire en apart toilet.
De rest is volledig open en is bedoeld als woonkamer, eetkamer en keuken met toegang tot het achterterras van +/- 10m2.
Tweede niveau ( eerste verdieping ) van +/- 35m2.
Bereikbaar via een trap in industriële stijl.
In deze ruimte kunt u de slaapkamer, de complete badkamer, een kleedkamer of kantoor (zie kleine slaapkamer) huisvesten.
Algemeen :
Een mede-eigendom met lage lasten, zeer goed onderhouden.



