Location:
Ixelles, beautiful, quiet location in a rear house, close to public transport, shops, and the Ixelles cemetery.
Description:
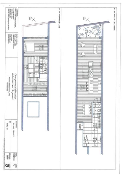
A bright 132m² duplex with a 10m² terrace in a small condominium.
If you're looking to live in the heart of Ixelles in a very quiet location, then this property might be for you.
The unique feature of this unusual property is that it is currently being converted into office space, with planning permission obtained for conversion into private housing.
An easy and flexible renovation to suit individual needs.
The building dates from 2008 and was completely renovated in 2022.
Layout:
A shared courtyard between the front building and the back building.
First level of +/- 85m²
This area includes a first entrance for bicycles, followed by the duplex entrance hall with a cloakroom and separate toilet.
The remaining floor is completely open and is intended as a living room, dining room, and kitchen with access to the rear terrace of approximately 10m².
Second level (first floor) of approximately 35m².
Accessible via an industrial-style staircase.
This space can accommodate a bedroom, a full bathroom, as well as a dressing room or office (see small bedroom).
Miscellaneous:
A condominium with low fees, very well maintained.
.png?format=webp&width=1920&height=auto)























